Container Sanitario 3×6 Metri – 6 Docce, 2 Lavandini, Scaldabagno 300 Litri
Container sanitario usato 3×6 metri con dotazione completa – 6 docce, 2 lavandini, servizi igienici e scaldabagno 300 litri. Ideale per cantieri ed eventi.
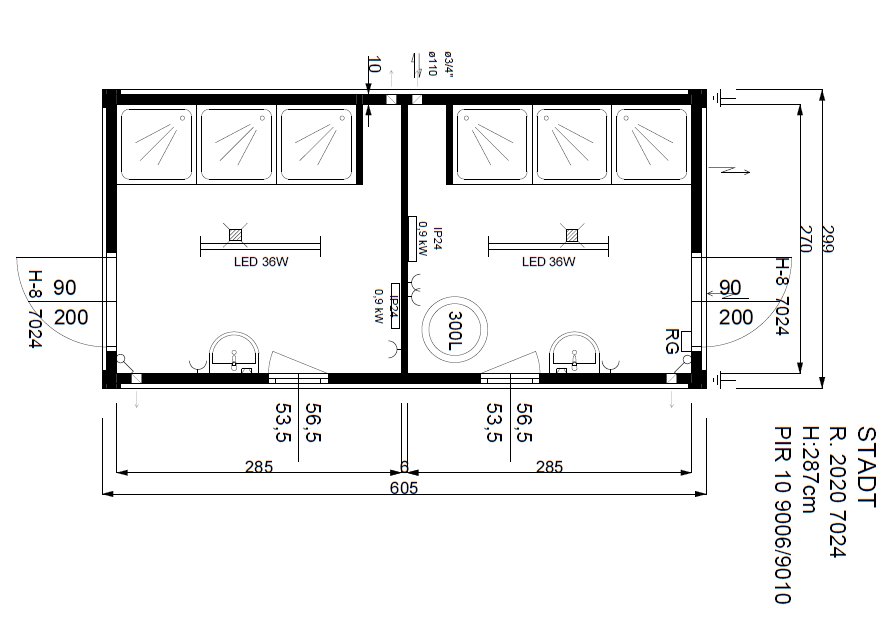
Il container sanitario 3×6 metri offre una soluzione immediatamente operativa per esigenze igienico-sanitarie in cantieri, campeggi e aree eventi. Con una superficie di 14,79 m² e robusta struttura metallica, garantisce durabilità anche con utilizzo intensivo.
L’allestimento completo include 6 docce, 2 lavandini, 1 servizio igienico, 1 orinatoio e 1 lavatrice. Lo scaldabagno da 300 litri assicura costante approvvigionamento di acqua calda. Due finestre con persiane regolabili permettono ventilazione ottimale e illuminazione naturale.
Specifiche tecniche:
-
Dimensioni esterne: 2,44 m (larghezza) × 6,06 m (lunghezza) × 2,80 m (altezza)
-
Superficie: 14,79 m²
-
Condizioni: Usato, buono stato
-
Porte: 1 porta su parete corta, 1 porta su parete lunga
-
Finestre: 2 finestre con persiane
Dotazioni:
-
6 docce
-
2 lavandini
-
1 servizio igienico
-
1 orinatoio
-
1 lavatrice
-
Scaldabagno 300 litri
-
Impianto elettrico completo
-
Robustà struttura metallica
Vantaggi:
-
Pronto all’uso – Completamente attrezzato e installato
-
Alta capacità – Utilizzo contemporaneo da parte di più persone
-
Costruzione robusta – Struttura metallica durevole per uso intensivo
-
Confortevole – Spazio sufficiente e ventilazione ottimale
-
Flessibile – Facile da trasportare e posizionare
Campo di applicazione:
-
Cantieri – Servizi igienici per lavoratori
-
Eventi – Festival e manifestazioni pubbliche
-
Campeggi – Strutture sanitarie temporanee
-
Emergenze – Interventi umanitari
-
Eventi sportivi – Spogliatoi e docce temporanei
FAQ:
-
Il container è adatto per l’inverno?
Sì, il container è progettato per uso annuale, in caso di gelo consigliamo isolamento aggiuntivo. -
Quali allacciamenti sono necessari?
Allacciamento acqua (3/4 di pollice), scarico (110 mm) e elettrico (230V). -
È possibile espandere il container?
Sì, più container possono essere combinati per creare strutture più ampie.

















Recensioni
Ancora non ci sono recensioni.